Appartement à vendre à Idegem
Découvrez le luxe de vivre dans un projet immobilier unique à petite échelle – seulement 7 appartements élégants.
Vous recherchez le confort moderne dans un environnement calme et agréable, sans pour autant sacrifier l'accessibilité ? Ce projet immobilier exclusif allie une architecture intemporelle à un agencement bien pensé et un emplacement exceptionnel.
Le projet comprend :
Rez-de-chaussée et premier étage :
* Un appartement spacieux de 2 chambres
* Deux appartements d'une chambre
Au deuxième étage, un appartement spacieux sous les toits avec une agréable terrasse.
Prix abordables
- Appartement d'une chambre à partir de 226 400 €*
- Appartement de 2 chambres à partir de 306 675 €*
*Hors TVA et frais
Une occasion unique d'investir ou de profiter vous-même d'un appartement neuf, moderne et économe en énergie, à un prix de lancement extrêmement attractif.
Possibilité d'acheter un ou plusieurs garages en surface.
Profitez d'un cadre de vie paisible avec une connexion facile vers Bruxelles et les principales autoroutes. Idéal pour ceux qui recherchent la tranquillité, mais veulent quand même pouvoir se déplacer rapidement.
À quelques pas se trouve le magnifique domaine provincial De Gavers, un véritable paradis pour les randonneurs, les cyclistes et les amoureux de la nature. Depuis votre nouvelle maison, vous pourrez explorer les itinéraires environnants vers Grammont, la réserve naturelle De Helix, ...
Êtes-vous prêt à commencer un nouveau chapitre dans un emplacement de choix ?
Contactez Pieter Cardoen au 0475 36 12 52 (pieter@cornelis-partners.be ) pour plus d'informations, des plans ou un rendez-vous personnel.
Finances
- Prix net
- € 250.915
- Dans le système de TVA
- Oui
Bâtiment
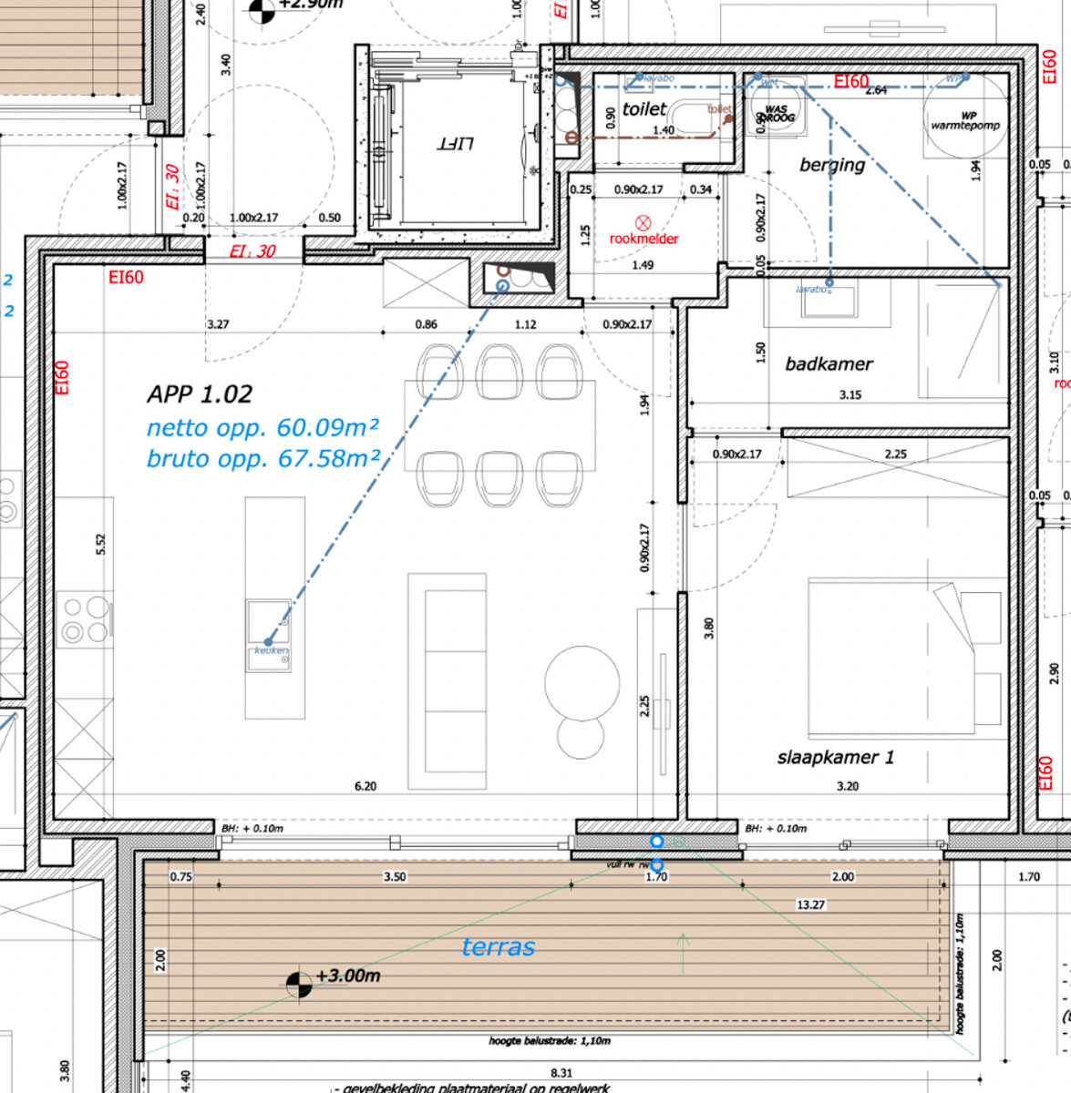
- Surface habitable
- 67 m²
- Construction
- 2 façades
- Étage
- 1
- Nombre d'étages
- 3
Aménagement
- Chambres
- 1
- Salles de bains
- 1
- Terrasse
- Oui
- Superficie terrasse
- 17 m²
Énergie
- PEB
Information sur l'urbanisme
- Destination
- Zone d'habitat
- Droit de préemption
- Non
- G-score
- D
- P-score
- D
- Zone d'espace ouvert sensible à l'eau
- Non
Interessé? D'autres questions?
Biens similaires
Voir appartements À vendre à proximité
Dendermonde, Lede, Zele
Gent-Merelbeke, Oudenaarde
Geraardsbergen





