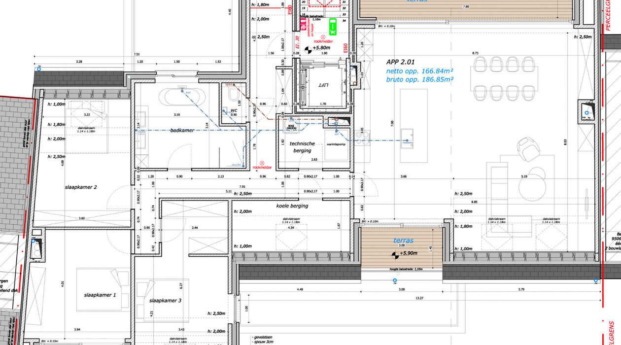
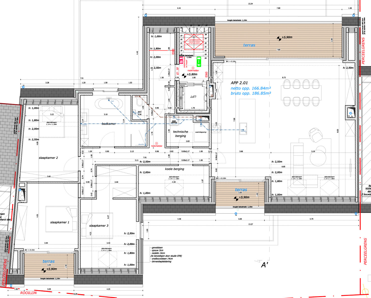
Appartement 2.01
Ontdek wonen met klasse in een uniek kleinschalig nieuwbouwproject – slechts 7 stijlvolle appartementen.
Bent u op zoek naar modern wooncomfort in een rustige, aangename omgeving, zonder in te boeten aan bereikbaarheid? Dit exclusieve nieuwbouwproject combineert tijdloze architectuur met een doordachte indeling en een uitzonderlijke ligging.
Het project omvat:
Gelijkvloers en eerste verdieping:
* Eén ruim 2-slaapkamerappartem
* Twee 1-slaapkamerappartementen
Op de tweede verdieping een ruim dakappartment met aangenaam terras.
Betaalbare prijzen
- 1-slaapkamerappartement vanaf € 226.400*
- 2-slaapkamerappartement vanaf € 306.675*
*Exclusief btw en kosten
Een unieke kans om te investeren of zelf te genieten van een modern, energiezuinig nieuwbouwappartement aan een uiterst aantrekkelijke introductieprijs.
Mogelijkheid tot aankoop van bovengrondse garagebox(en).
Geniet van een rustige woonomgeving met een vlotte verbinding richting o.a. Brussel en belangrijke autostrades. Ideaal voor wie rust zoekt, maar toch snel op weg wil.
Op wandelafstand bevindt zich het prachtige Provinciaal Domein De Gavers , een waar paradijs voor wandelaars, fietsers en natuurliefhebbers. Vanuit uw nieuwe thuis verkent u de omliggende routes richting Geraardsbergen, het natuurreservaat De Helix, ….
Bent u klaar voor een nieuw hoofdstuk op een toplocatie?
Contacteer Pieter Cardoen op 0475 36 12 52 (pieter@cornelis-partners.be ) nog voor meer informatie, plannen of een persoonlijk kennismakingsmoment.
Financieel en beschikbaarheid
- Nettoprijs
- € 485.460
- Onder BTW stelsel
- Ja
Gebouw
- Bewoonbare opp.
- 186 m²
- Constructie
- Gesloten
- Verdieping
- 2
- Verdieping(en)
- 3
Indeling
- Kamers
- 2
- Terras
- Ja
- Terrasoppervlakte
- 24 m²
Comfort
- Zwembad
- Nee
Energie
- EPC
Stedenbouwkundige informatie
- Bestemming
- Woongebied
- Voorkooprecht
- Nee
- G-score
- D
- P-score
- D
- Watergevoelig openruimtegebied
- Nee
De vraag-/richtprijs die we hanteren wordt beschouwd als uitnodiging tot onderhandeling ten aanzien van kandidaat-kopers. De kandidaat-koper is vrij om een bod te plaatsen dat lager, gelijk aan of hoger is dan de prijs die vermeld wordt in de publiciteit. De verkoper beslist welk bod hij/zij aanvaardt en dit hoeft niet het hoogste bod te zijn. De prijs die we in onze publiciteit vermelden kan daarom geenszins als bindend gelden voor de verkoper.
Deze informatie is louter indicatief en kan zonder voorafgaande verwittiging gewijzigd worden.
Interesse? Nog vragen?
Vergelijkbare panden
Bekijk appartementen Te koop in de buurt
Dendermonde, Lede, Zele
Gent-Merelbeke, Oudenaarde
Geraardsbergen































