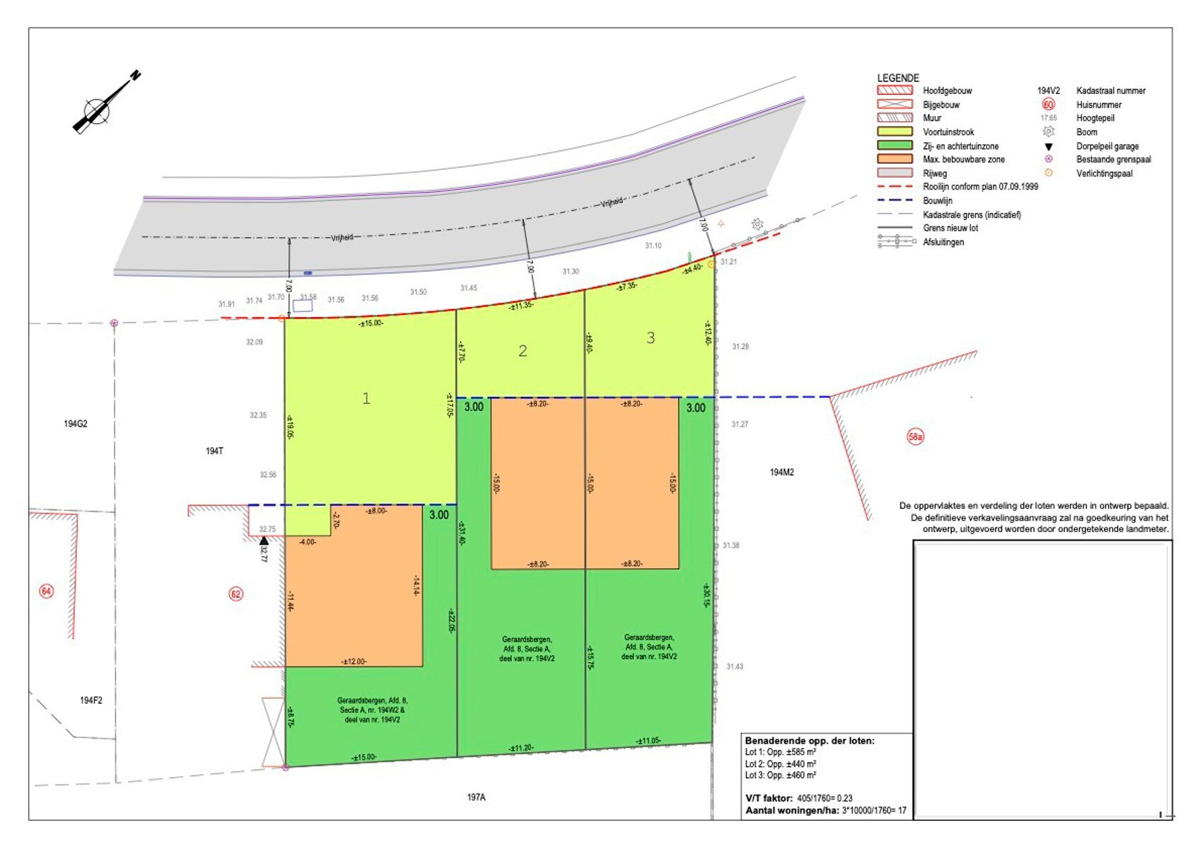
Investeringproject woning/grond/weide op 22.901 m²
Dit investeringsproject omvat momenteel drie afzonderlijk kadastrale entiteiten.
1. Handelshuis op een perceel van 948 vierkante meter. Deze woning is te renoveren, biedt dus wat mogelijkheden naar renovatie toe.
Opportuniteit voor o.a. commercieel pand met woonst, handelsruimte, groepspraktijk, …… met ruime parking.Perceelsbreedte aan de straatkant 24 m,
2. Bouwgrond zonder bouwverplichting van 533 vierkante meter. Perceelsbreedte aan de straatkant 21 m,
3. Weiland met een oppervlakte van 21420 vierkante meter.
Dit investeringsproject bestaat momenteel uit drie bovenvermelde entiteiten.
Of als projectgrond voor nieuwbouwproject :
- verkaveling met twee gesloten bewouwingen en een half open, met achterliggend weiland. In aanvraag.
- voor o.a. handelspand op gelijksvloer (retail, horeca, kantoor, ….) met woonentiteiten op de verdieping(en).
Voor bijkomende info (kadaster, EPC, Asbest, VGI, …..) klik op de « informatieaanvraag » button op deze pagina. U ontvangt dan alle beschikbare info en wij contacteren u om een afspraak te plaatse in te plannen. Verkoop: Pieter Cardoen, 0475 36 12 52, pieter@cornelis-partners.be
Vermelde afmetingen in bovenvermelde advertentie zijn informatief en niet bindend.
Handelspand valt momenteel onder de huidige Vlaamse renovatieverplichting.
Financieel en beschikbaarheid
- Nettoprijs
- € 700.000
Gebouw
- Bewoonbare opp.
- 234 m²
- Constructie
- Open
Terrein
- Perceel opp.
- 22.901 m²
Indeling
- Keuken
- Ja
Garage
- Garage
- Nee
- Binnenparking
- Nee
- Buitenparking
- 15
Technieken
- Elektriciteit
- Ja
Comfort
- Rolstoeltoegankelijk
- Nee
- Lift
- Nee
- Aansluiting riolering
- Ja
- Aansluiting water
- Ja
Energie
- Renovatieverplichting
- Ja
Stedenbouwkundige informatie
- Bestemming
- Woongebied
- Bouwvergunning
- Ja
- Verkavelingsvergunning
- Ja
- Voorkooprecht
- Nee
- Watergevoelig openruimtegebied
- Nee
- Bodemattest
- Ja
Attesten
- Asbestattest
- Ja
De vraag-/richtprijs die we hanteren wordt beschouwd als uitnodiging tot onderhandeling ten aanzien van kandidaat-kopers. De kandidaat-koper is vrij om een bod te plaatsen dat lager, gelijk aan of hoger is dan de prijs die vermeld wordt in de publiciteit. De verkoper beslist welk bod hij/zij aanvaardt en dit hoeft niet het hoogste bod te zijn. De prijs die we in onze publiciteit vermelden kan daarom geenszins als bindend gelden voor de verkoper.
Deze informatie is louter indicatief en kan zonder voorafgaande verwittiging gewijzigd worden.
Interesse? Nog vragen?
Vergelijkbare panden
Bekijk kantoren Te koop in de buurt
Dendermonde, Lede, Zele
Gent-Merelbeke, Oudenaarde
Geraardsbergen







