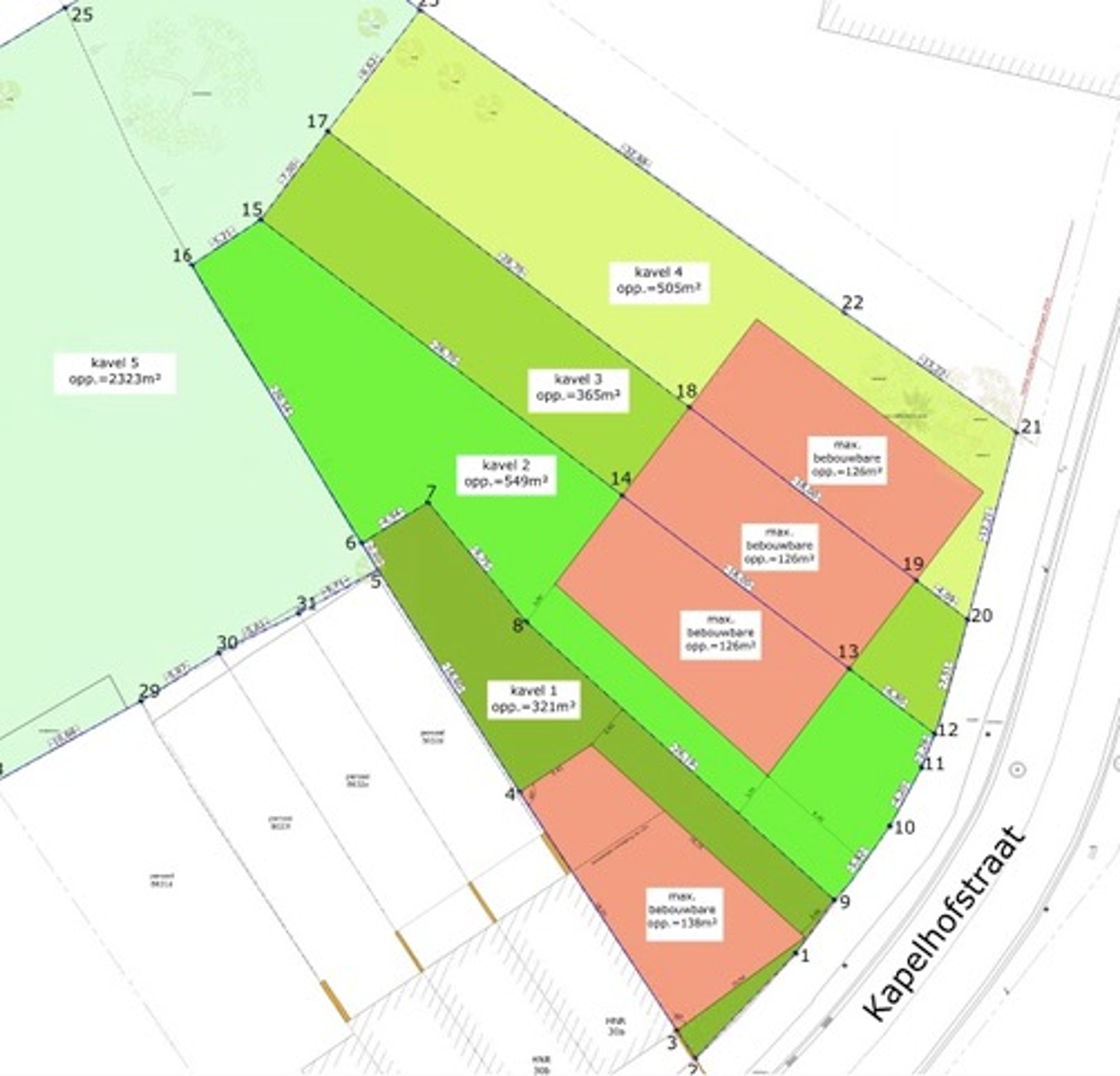
Perceel grond 18are - breedte 44,5 m
Te koop in Erpe : perceel grond van 18 are gelegen in woongebied met een straatbreedte van 44m. Dienst stedenbouw geeft mondeling akkoord voor verkavelen in 4 percelen voor 3 half open bebouwing en 1 gesloten bebouwing Landelijke ligging is zeker een troef! Voor meer info, contacteer Bernhard 0476 022 089 - bernhard@cornelis-goeman.be
Financieel en beschikbaarheid
- Nettoprijs
- € 499.000
- Beschikbaarheid
- Vanaf akte
- Kadastraal inkomen
- € 507
Terrein
- Perceel opp.
- 1.740 m²
- Terreindiepte
- 45 m
Ligging
- Ligging
- Landelijk
- Omgeving school
- Ja
- Omgeving openbaar vervoer
- Ja
- Omgeving winkels
- Ja
- Omgeving autosnelweg
- Ja
- Omgeving sportcentrum
- Ja
Stedenbouwkundige informatie
- Bouwvergunning
- Nee
- Verkavelingsvergunning
- Nee
- Voorkooprecht
- Nee
- Dagvaarding
- Geen rechterlijke herstelmaatregel of bestuurlijke maatregel opgelegd
- Vonnissen
- Nee
- G-score
- B
- P-score
- B
- Bodemattest
- Ja
Attesten
- Asbestattest
- Ja, 15 april 2024, niet asbestveilig
De vraag-/richtprijs die we hanteren wordt beschouwd als uitnodiging tot onderhandeling ten aanzien van kandidaat-kopers. De kandidaat-koper is vrij om een bod te plaatsen dat lager, gelijk aan of hoger is dan de prijs die vermeld wordt in de publiciteit. De verkoper beslist welk bod hij/zij aanvaardt en dit hoeft niet het hoogste bod te zijn. De prijs die we in onze publiciteit vermelden kan daarom geenszins als bindend gelden voor de verkoper.
Deze informatie is louter indicatief en kan zonder voorafgaande verwittiging gewijzigd worden.
Interesse? Nog vragen?
Vergelijkbare panden
Bekijk gronden Te koop in de buurt
Dendermonde, Lede, Zele
Gent-Merelbeke, Oudenaarde
Geraardsbergen





























