Nouvelle construction économe en énergie à 6 % de TVA*
Vous recherchez une maison neuve entièrement finie et de grande qualité à 6 % de TVA* ? Alors voici une belle opportunité.
Cette maison d'une superficie habitable de pas moins de 280 m², à l'architecture haut de gamme, dispose de son propre ascenseur (accessible aux fauteuils roulants) du rez-de-chaussée au troisième étage.
Au rez-de-chaussée : hall d'entrée (+ toilettes), espace lumineux côté rue, idéal pour ceux qui recherchent un bureau ou un espace de travail pour une profession libérale, une salle de bains (équipée), un débarras et une chambre (à coucher) supplémentaire. Grâce à son aménagement polyvalent, cet étage offre une opportunité pour ceux qui recherchent, entre autres, un espace de cabinet (de groupe) (accessible en fauteuil roulant) au rez-de-chaussée, un espace de bureau...
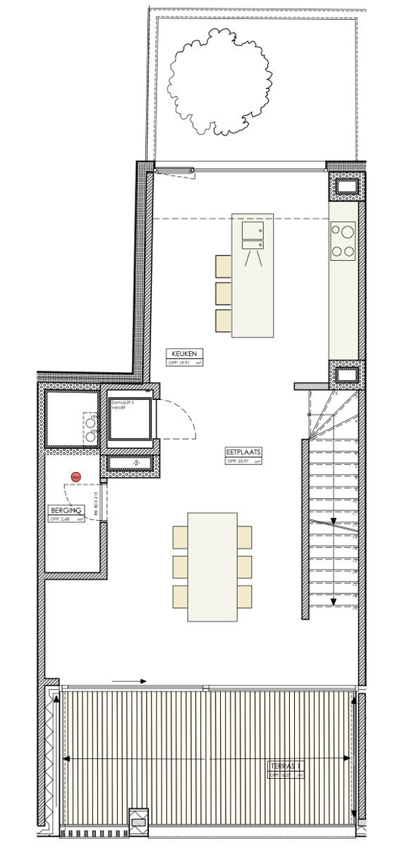
Au 1er étage, une cuisine ouverte + un salon d'où vous avez accès à la grande terrasse.
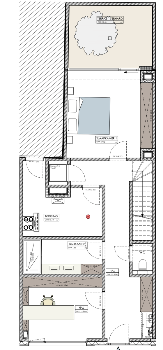
Le deuxième étage comprend un coin salon, une chambre spacieuse, une salle de bains et des toilettes séparées.
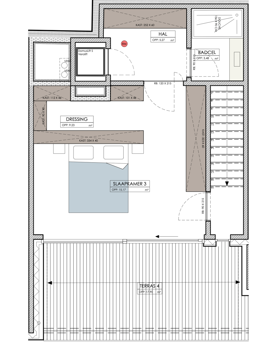
Au 3e étage, vous avez accès à la terrasse depuis la chambre lumineuse avec dressing, salle de douche, ...
Actuellement, cette maison peut encore être achetée « casco » et l'agencement peut être adapté à vos souhaits. Prix sur demande*.
Vous souhaitez visiter ou obtenir des informations complémentaires ?
Contactez Pieter Cardoen au 0475 361252.
*Contactez-nous pour connaître les conditions.
Finances
- Prix net
- € 549.000
- Dans le système de TVA
- Oui
- Disponibilité
- Immédiatement
Bâtiment
- Surface habitable
- 279 m²
- Construction
- 2 façades
- État
- Neuf
- Nombre d'étages
- 4
- Largeur de façade
- 7 m
- Orientation façade arrière
- Sud-est
Terrain
- Surface au sol
- 113 m²
- Largeur du côté de la rue
- 6,7 m
- Jardin
- Non
Aménagement
- Chambres
- 3
- Salles de bains
- 3
- Cuisine
- Oui
- Terrasse
- Oui
- Superficie terrasse
- 46 m²
Localisation géographique
- Localisation géographique
- Centre ville
- École de l'environnement
- 100 m
- Environnement transportable
- 100 m
- Magasins d'environnement
- 100 m
- Environnement autoroutier
- 12.000 m
- Centre sportif de l'environnement
- 500 m
Garage
- Parking intérieur
- Non
- Parking extérieur
- Non
Techniques
- Électricité
- Oui
- Câblage téléphonique
- Oui
Confort
- Meublé
- Non
- Accessible aux fauteuils roulants
- Oui
- Vidéophone
- Oui
- Ascenseur
- Oui
- Piscine
- Non
- Branchement d'égouts
- Oui
- Connexion de gaz
- Oui
- Connexion d'eau
- Oui
- Télévision par câble
- Oui
Énergie
- PEB
- Type de fenêtres
- Aluminium
- Double vitrage
- Oui, Interruption thermique et acoustique
- Chauffage
- Pompe à chaleur
- Type de chauffage
- Individuel
Information sur l'urbanisme
- Destination
- Zone d'habitat avec une valeur cult., hist. et/ou esthétique
- Permis de construire
- Oui
- Permis de lotissement
- Oui
- Droit de préemption
- Oui
- Verdicts
- Non
- G-score
- A
- P-score
- A
- Zone d'espace ouvert sensible à l'eau
- Non
- Patrimoine inventorié
- Oui
Interessé? D'autres questions?
Biens similaires
Voir maisons À vendre à proximité
Dendermonde, Lede, Zele
Gent-Merelbeke, Oudenaarde
Geraardsbergen














