Nieuwbouwproject luxe villa te Merelbeke
Droom je van een nieuwe, moderne villa in een rustige, groene omgeving? Dan is dit een unieke kans voor u!
Deze stijlvolle en kwalitatieve villa is uiteraard energiezuinig (Label A) heeft een warme stijl, is doordacht en praktisch ingericht en ligt bovendien in een rustige straat op wandelafstand van de Scheldevallei, het Hollebeekpark, het Rotary-bos en kasteel Krombrugge.
INDELING:
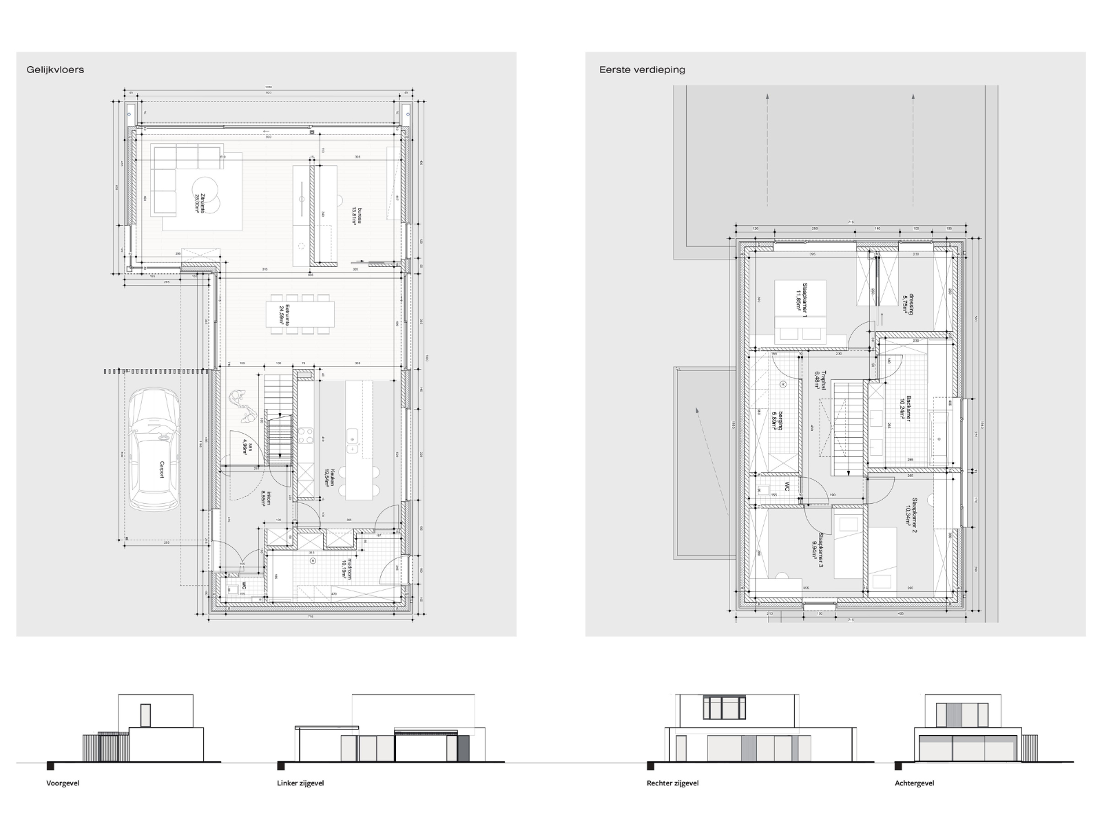
Gelijkvloers: ruime inkomhal met trap, gastentoilet met lavabo, een lichtrijke leefruimte met rechtstreekse toegang tot de tuin, gevolgd door de open keuken met annex een bureau en een praktische berging.
Verdieping: drie volwaardige slaapkamers, (1 slaapkamer met annex een grote dressing) een luxe badkamer (ligbad en inloopdouche) met een apart toilet en een grote berging.
De inrichting van de keuken en de badkamer bepaalt u zelf met een zeer ruim budget van 33.000 € voor de keuken en 12.500 € voor de badkamer!
Deze energiezuinige villa wordt uiteraard gebouwd volgens de strenge bouwvoorschriften met zonnepanelen, warmtepomp, ventilatie systeem D, HR dubbel glas in aluminium profielen, vloer-spouw- en dakisolatie, kelder, alarmsysteem enz.
TROEF: DE LIGGING! Deze moderne villa ligt op wandelafstand van scholen, openbaar vervoer en de Scheldevallei.
Het opritten complex R4, E40 en E17 op slechts 5 km.
Verkoopprijs:
Grond: 450.000 EUR. en constructie: 705.000 EUR.
Excl. BTW, registratierechten en kosten
Wenst u meer info, de plannen en het lastenboek, bel Marianne: 0478 38 12 88
Financieel en beschikbaarheid
- Nettoprijs
- € 1.155.000
- Onder BTW stelsel
- Ja
- Beschikbaarheid
- Bij oplevering
Gebouw
- Bewoonbare opp.
- 270 m²
- Constructie
- Open
- Bouwjaar
- 2024
- Staat
- Nieuwbouw
- Bebouwde opp. hoofdgebouw
- 142 m²
- Gevelbreedte
- 18 m
- Oriëntatie achtergevel
- Oost
- Oriëntatie voorgevel
- West
Terrein
- Perceel opp.
- 940 m²
- Breedte aan de straatkant
- 24,3 m
- Tuin
- 800 m²
Indeling
- Kamers
- 3
- Slaapkamer 1
- 17 m²
- Slaapkamer 2
- 10 m²
- Slaapkamer 3
- 10 m²
- Badkamers
- 1
- Woonkamer
- 28 m²
- Keuken
- 20 m², Volledig geïnstalleerd
- Eetkamer
- 25 m²
- Bijkeuken
- Ja
- Bureau
- 14 m²
- Wasplaats
- Ja
- Terras
- Ja
Ligging
- Ligging
- Residentiële wijk
- Omgeving school
- 400 m
- Omgeving openbaar vervoer
- 350 m
- Omgeving winkels
- 500 m
- Omgeving autosnelweg
- 5.000 m
- Omgeving sportcentrum
- 2.000 m
Garage
- Carport
- Ja
- Buitenparking
- 2
Technieken
- Elektriciteit
- Ja
- Telefoonbekabeling
- Ja
Comfort
- Gemeubeld
- Nee
- Alarm
- Ja
- Intercom
- Ja
- Videofoon
- Ja
- Branddetector
- Ja
- Gepantserde deur
- Ja
- Aansluiting riolering
- Ja
- Aansluiting water
- Ja
- Kabeltelevisie
- Ja
- Domotica
- Ja
Energie
- EPC
- Type ramen
- Aluminium
- Dubbel glas
- Ja
- Elektriciteitskeuring
- Ja, conform
- Verwarming
- Vloerverwarming
- Zonnepanelen
- Ja,
- Regenwaterput
- Ja
Stedenbouwkundige informatie
- Bestemming
- Woongebied
- Bouwvergunning
- Ja
- Verkavelingsvergunning
- Ja
- Voorkooprecht
- Nee
- Vonnissen
- Nee
- P-score
- D
- Watergevoelig openruimtegebied
- Nee
- Kadaster sectie
- B
- Kadaster nummer
- 781 T 3
- Bodemattest
- Ja
Attesten
- Asbestattest
- asbestvrij
Downloads
De vraag-/richtprijs die we hanteren wordt beschouwd als uitnodiging tot onderhandeling ten aanzien van kandidaat-kopers. De kandidaat-koper is vrij om een bod te plaatsen dat lager, gelijk aan of hoger is dan de prijs die vermeld wordt in de publiciteit. De verkoper beslist welk bod hij/zij aanvaardt en dit hoeft niet het hoogste bod te zijn. De prijs die we in onze publiciteit vermelden kan daarom geenszins als bindend gelden voor de verkoper.
Deze informatie is louter indicatief en kan zonder voorafgaande verwittiging gewijzigd worden.
Interesse? Nog vragen?
Vergelijkbare panden
Bekijk huizen Te koop in de buurt
Dendermonde, Lede, Zele
Gent-Merelbeke, Oudenaarde
Geraardsbergen

