Appartement te koop in Geraardsbergen
Appartement te koop in Geraardsbergen Appartement te koop in Geraardsbergen Appartement te koop in Geraardsbergen

Appartement Te koop Geraardsbergen

  • 126 m²
  • 2

395.000

Vianeplein 24

EPC

Nieuwbouwappartement met 2 slpks + terras

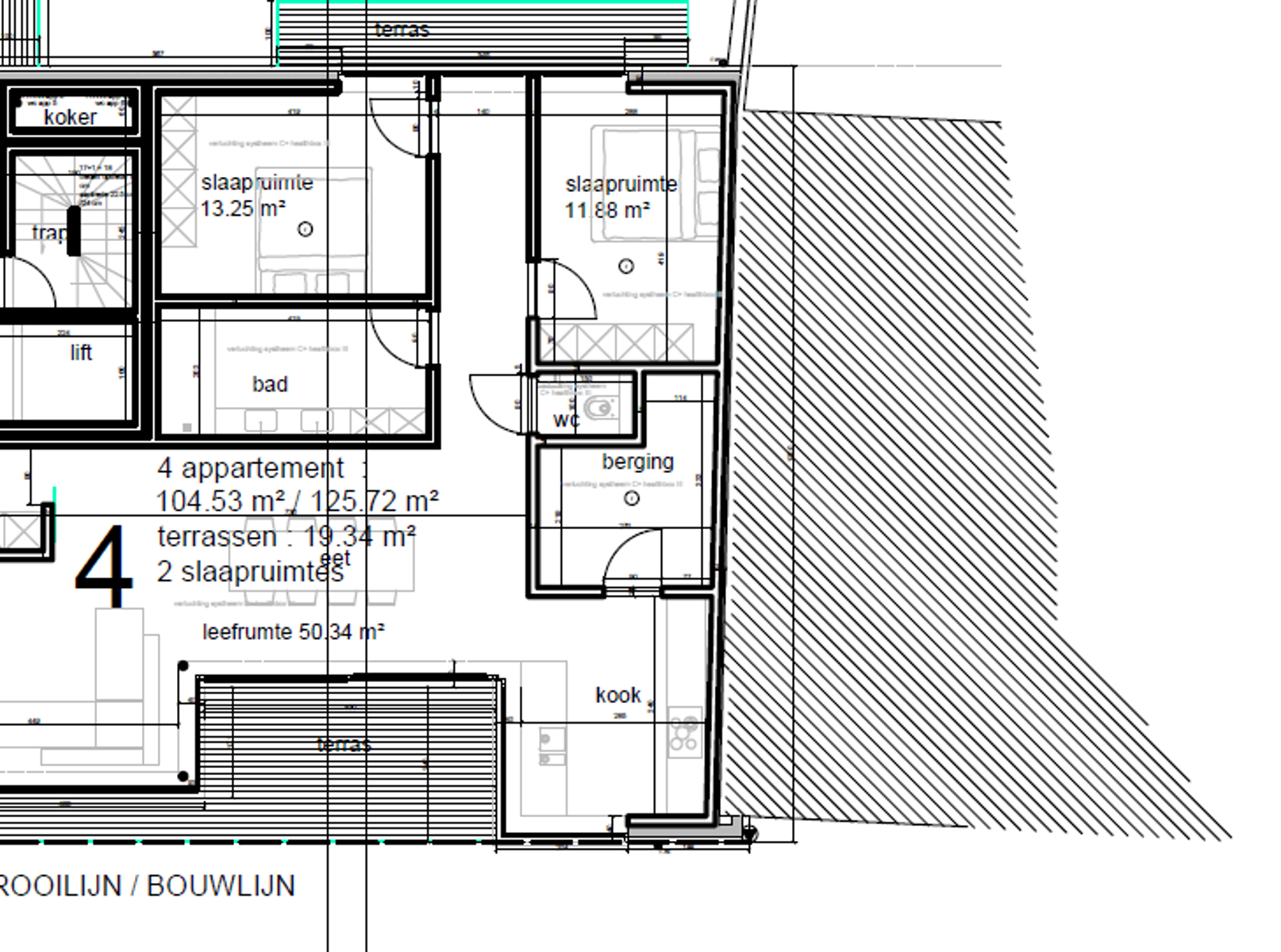
Welkom bij nieuwbouwproject “BEAU” te Geraardsbergen (deelgemeente Viane), waar lichtinval, privacy en een prachtig uitzicht hand in hand gaan. Dit project biedt een unieke kans om te wonen in optimaal comfort met extra aandacht voor praktische indeling en energiezuinigheid

Dit appartement (met een totale bewoonbare oppervlakte van 125 m²) op de eerste verdieping biedt een leefruimte van 50,5 m² met open keuken en directe toegang tot twee terrassen (tot 20 m²). Verder een badkamer voorzien van alle hedendaags comfort (o.a. ligbad, dubbele wastafel,. ) en er zijn twee comfortabele slaapkamers. Bijkomend een berging en afzonderlijk gastentoilet.

Gelegen in de rustige deelgemeente Viane, biedt dit project uitstekende verbindingen naar o.a Brussel/ Rijsel:
Met de wagen, met de oprit naar de E429 op slechts 8 minuten rijden. Met het openbaar vervoer : op 1,8 km van treinstation met rechtstreekse verbinding naar o.a. Bussel
- Natuurreservaat “ Rietbeemd” op 3 km
- Muur van Geraardbergen op 4,2 km
- Bosberg te Galmaarden
- recreatiedomein de Gavers

U geniet van een hoog wooncomfort dankzij Akoestische en Thermische Isolatie, Automatische Zonnewering, Herbruik van Regenwater, Individuele Warmtepomp met Zonnepanelen, Vloerverwarming, Voldoende Opbergruimte, Ruime Terrassen. De indeling en afwerking kunnen nog volgens uw wensen worden aangepast, zodat u uw droom(t)huis kunt creëren. Voor bijkomende info: Bel 0475361252 of pieter@cornelis-partners.be. Vermelde prijs is excl RR en BTW

Financieel en beschikbaarheid

Nettoprijs
€ 395.000
Beschikbaarheid
Bij oplevering

Gebouw

Bewoonbare opp.
126 m²
Staat
Nieuwbouw
Verdieping
1
Verdieping(en)
2

Indeling

Kamers
2
Badkamers
1
Terras
Ja
Terrasoppervlakte
19 m²

De vraag-/richtprijs die we hanteren wordt beschouwd als uitnodiging tot onderhandeling ten aanzien van kandidaat-kopers. De kandidaat-koper is vrij om een bod te plaatsen dat lager, gelijk aan of hoger is dan de prijs die vermeld wordt in de publiciteit. De verkoper beslist welk bod hij/zij aanvaardt en dit hoeft niet het hoogste bod te zijn. De prijs die we in onze publiciteit vermelden kan daarom geenszins als bindend gelden voor de verkoper.
Deze informatie is louter indicatief en kan zonder voorafgaande verwittiging gewijzigd worden.

Interesse? Nog vragen?

Gelieve uw aanspreking in te vullen.

Gelieve uw voornaam in te vullen.

Gelieve uw naam in te vullen.

Gelieve uw e-mailadres in te vullen.

Gelieve een geldig telefoonnummer in te vullen

Gelieve uw bericht in te vullen.

Gelieve akkoord te gaan met onze voorwaarden.

Appartement te koop in Geraardsbergen

Vergelijkbare panden

Bekijk appartementen Te koop in de buurt

Appartement te koop in Geraardsbergen
Appartement

Geraardsbergen

€ 481.000

  • 137 m²
  • 3
Appartement te koop in Geraardsbergen
Appartement

Geraardsbergen

€ 376.000

  • 110 m²
  • 2
Appartement te koop in Geraardsbergen
Appartement

Geraardsbergen

€ 405.000

  • 132 m²
  • 2
Appartement te koop in Geraardsbergen
Appartement

Geraardsbergen

€ 405.000

  • 132 m²
  • 2
Appartement te koop in Geraardsbergen
Appartement

Geraardsbergen

€ 481.000

  • 137 m²
  • 3
Appartement te koop in Geraardsbergen
Appartement

Geraardsbergen

€ 395.000

  • 126 m²
  • 2
Appartement te koop in Geraardsbergen
Appartement

Geraardsbergen

€ 376.000

  • 110 m²
  • 2
Appartement te koop in Geraardsbergen
Appartement

Geraardsbergen

€ 419.500

  • 131 m²
  • 126 m²
Gelijkvloerse verdieping te koop in Geraardsbergen
Gelijkvloerse verdieping

Geraardsbergen

€ 349.000

  • 108 m²
  • 3
Appartement te koop in Geraardsbergen
Appartement

Geraardsbergen

€ 302.400

  • 84 m²
  • 1
Appartement te koop in Geraardsbergen
Appartement

Geraardsbergen

€ 290.000

  • 80 m²
  • 1
Appartement te koop in Geraardsbergen
Appartement

Geraardsbergen

€ 306.675

  • 87 m²
  • 2
Appartement te koop in Geraardsbergen
Appartement

Geraardsbergen

€ 485.460

  • 186 m²
  • 2
Appartement te koop in Geraardsbergen
Appartement

Geraardsbergen

€ 349.500

  • 100 m²
  • 92 m²
Appartement te koop in Geraardsbergen
Appartement

Geraardsbergen

€ 404.500

  • 90 m²
  • 85 m²
Appartement te koop in Geraardsbergen
Appartement

Geraardsbergen

€ 359.500

  • 110 m²
  • 105 m²
Appartement te koop in Geraardsbergen
Appartement

Geraardsbergen

€ 309.500

  • 89 m²
  • 85 m²
Appartement te koop in Geraardsbergen
Appartement

Geraardsbergen

€ 419.500

  • 131 m²
  • 126 m²
Appartement te koop in Geraardsbergen
Appartement

Geraardsbergen

€ 349.500

  • 100 m²
  • 92 m²
Appartement te koop in Geraardsbergen
Appartement

Geraardsbergen

€ 404.500

  • 90 m²
  • 85 m²
Appartement te koop in Geraardsbergen
Appartement

Geraardsbergen

€ 309.500

  • 89 m²
  • 85 m²
Appartement te koop in Geraardsbergen
Appartement

Geraardsbergen

€ 359.500

  • 110 m²
  • 105 m²
Appartement te koop in Geraardsbergen
Appartement

Geraardsbergen

€ 419.500

  • 131 m²
  • 126 m²
Appartement te koop in Geraardsbergen
Appartement

Geraardsbergen

€ 349.500

  • 100 m²
  • 92 m²
Appartement te koop in Geraardsbergen
Appartement

Geraardsbergen

€ 404.500

  • 90 m²
  • 85 m²
Appartement te koop in Geraardsbergen
Appartement

Geraardsbergen

€ 309.500

  • 89 m²
  • 85 m²
Appartement te koop in Geraardsbergen
Appartement

Geraardsbergen

€ 359.500

  • 110 m²
  • 105 m²
Appartement te koop in Geraardsbergen
Appartement

Geraardsbergen

€ 419.500

  • 131 m²
  • 126 m²
Appartement te koop in Geraardsbergen
Nieuw
Appartement

Geraardsbergen

€ 404.500

  • 90 m²
  • 85 m²
Appartement te koop in Geraardsbergen
Nieuw
Appartement

Geraardsbergen

€ 359.500

  • 110 m²
  • 105 m²
Appartement te koop in Geraardsbergen
Nieuw
Appartement

Geraardsbergen

€ 419.500

  • 131 m²
  • 126 m²
Appartement te koop in Geraardsbergen
Nieuw
Appartement

Geraardsbergen

€ 309.500

  • 89 m²
  • 85 m²
Appartement te koop in Geraardsbergen
Nieuw
Appartement

Geraardsbergen

€ 349.500

  • 100 m²
  • 92 m²
Appartement te koop in Geraardsbergen
Nieuw
Appartement

Geraardsbergen

€ 419.500

  • 131 m²
  • 126 m²
Appartement te koop in Geraardsbergen
Nieuw
Appartement

Geraardsbergen

€ 359.500

  • 110 m²
  • 105 m²
Appartement te koop in Geraardsbergen
Nieuw
Appartement

Geraardsbergen

€ 359.500

  • 110 m²
  • 105 m²
Appartement te koop in Geraardsbergen
Nieuw
Appartement

Geraardsbergen

€ 309.500

  • 89 m²
  • 85 m²
Appartement te koop in Geraardsbergen
Nieuw
Appartement

Geraardsbergen

€ 404.500

  • 90 m²
  • 85 m²
Appartement te koop in Geraardsbergen
Nieuw
Appartement

Geraardsbergen

€ 349.500

  • 100 m²
  • 92 m²
Appartement te koop in Geraardsbergen
Nieuw
Appartement

Geraardsbergen

€ 349.500

  • 100 m²
  • 92 m²
Appartement te koop in Geraardsbergen
Nieuw
Appartement

Geraardsbergen

€ 309.500

  • 89 m²
  • 85 m²
Appartement te koop in Geraardsbergen
Nieuw
Appartement

Geraardsbergen

€ 419.500

  • 131 m²
  • 126 m²
Appartement te koop in Geraardsbergen
Nieuw
Appartement

Geraardsbergen

€ 404.500

  • 90 m²
  • 85 m²

Dendermonde, Lede, Zele

052 52 80 30

Gent-Merelbeke, Oudenaarde

09 232 21 50

Geraardsbergen

054 67 00 60

Vraag schatting