Nieuwbouwappartement met 2 slpks + terras
Welkom bij nieuwbouwproject “BEAU” te Geraardsbergen (deelgemeente Viane), waar lichtinval, privacy en een prachtig uitzicht hand in hand gaan. Dit project biedt een unieke kans om te wonen in optimaal comfort met extra aandacht voor praktische indeling en energiezuinigheid
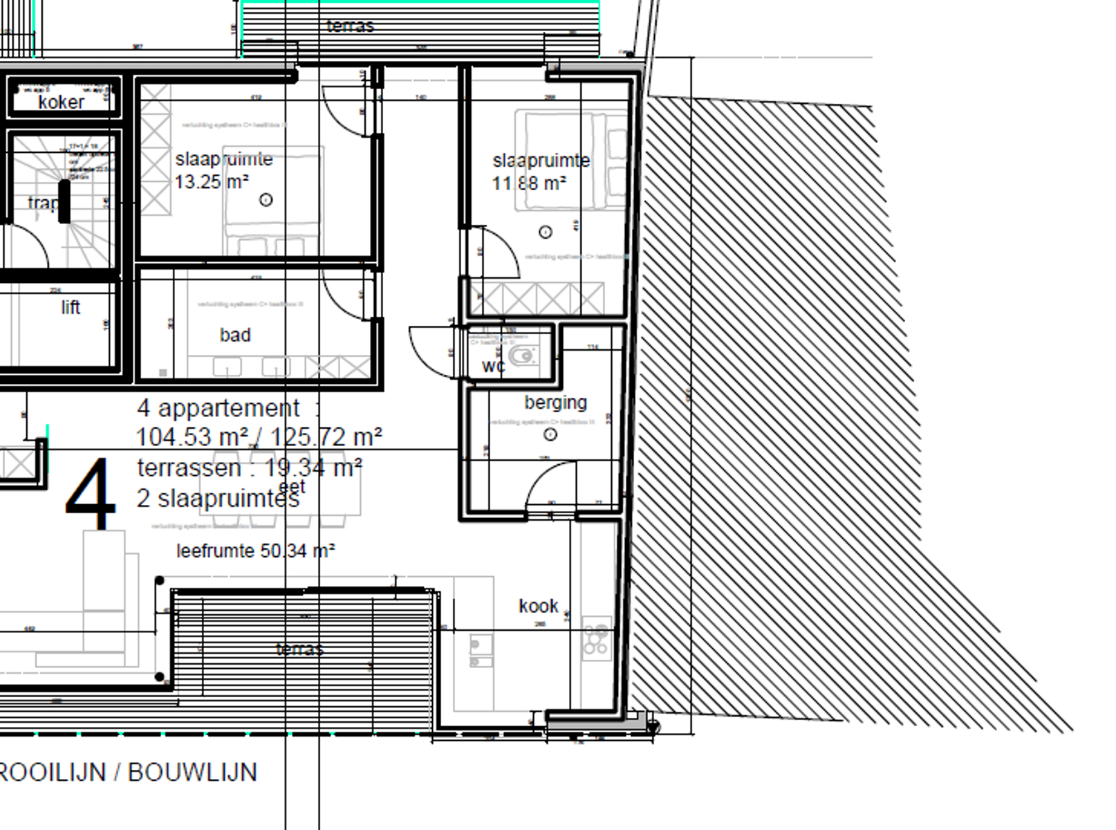
Dit appartement (met een totale bewoonbare oppervlakte van 125 m²) op de eerste verdieping biedt een leefruimte van 50,5 m² met open keuken en directe toegang tot twee terrassen (tot 20 m²). Verder een badkamer voorzien van alle hedendaags comfort (o.a. ligbad, dubbele wastafel,. ) en er zijn twee comfortabele slaapkamers. Bijkomend een berging en afzonderlijk gastentoilet.
Gelegen in de rustige deelgemeente Viane, biedt dit project uitstekende verbindingen naar o.a Brussel/ Rijsel:
Met de wagen, met de oprit naar de E429 op slechts 8 minuten rijden. Met het openbaar vervoer : op 1,8 km van treinstation met rechtstreekse verbinding naar o.a. Bussel
- Natuurreservaat “ Rietbeemd” op 3 km
- Muur van Geraardbergen op 4,2 km
- Bosberg te Galmaarden
- recreatiedomein de Gavers
U geniet van een hoog wooncomfort dankzij Akoestische en Thermische Isolatie, Automatische Zonnewering, Herbruik van Regenwater, Individuele Warmtepomp met Zonnepanelen, Vloerverwarming, Voldoende Opbergruimte, Ruime Terrassen. De indeling en afwerking kunnen nog volgens uw wensen worden aangepast, zodat u uw droom(t)huis kunt creëren. Voor bijkomende info: Bel 0475361252 of pieter@cornelis-partners.be. Vermelde prijs is excl RR en BTW
Financieel en beschikbaarheid
- Nettoprijs
- € 395.000
- Beschikbaarheid
- Bij oplevering
Gebouw
- Bewoonbare opp.
- 126 m²
- Staat
- Nieuwbouw
- Verdieping
- 1
- Verdieping(en)
- 2
Indeling
- Kamers
- 2
- Badkamers
- 1
- Terras
- Ja
- Terrasoppervlakte
- 19 m²
Downloads
De vraag-/richtprijs die we hanteren wordt beschouwd als uitnodiging tot onderhandeling ten aanzien van kandidaat-kopers. De kandidaat-koper is vrij om een bod te plaatsen dat lager, gelijk aan of hoger is dan de prijs die vermeld wordt in de publiciteit. De verkoper beslist welk bod hij/zij aanvaardt en dit hoeft niet het hoogste bod te zijn. De prijs die we in onze publiciteit vermelden kan daarom geenszins als bindend gelden voor de verkoper.
Deze informatie is louter indicatief en kan zonder voorafgaande verwittiging gewijzigd worden.
Interesse? Nog vragen?
Vergelijkbare panden
Bekijk appartementen Te koop in de buurt
Dendermonde, Lede, Zele
Gent-Merelbeke, Oudenaarde
Geraardsbergen











































