Nieuwbouwappartement met 3 slpks + terras
Welkom bij nieuwbouwproject “BEAU” te Geraardsbergen (deelgemeente Viane), waar lichtinval, privacy en een prachtig uitzicht hand in hand gaan.
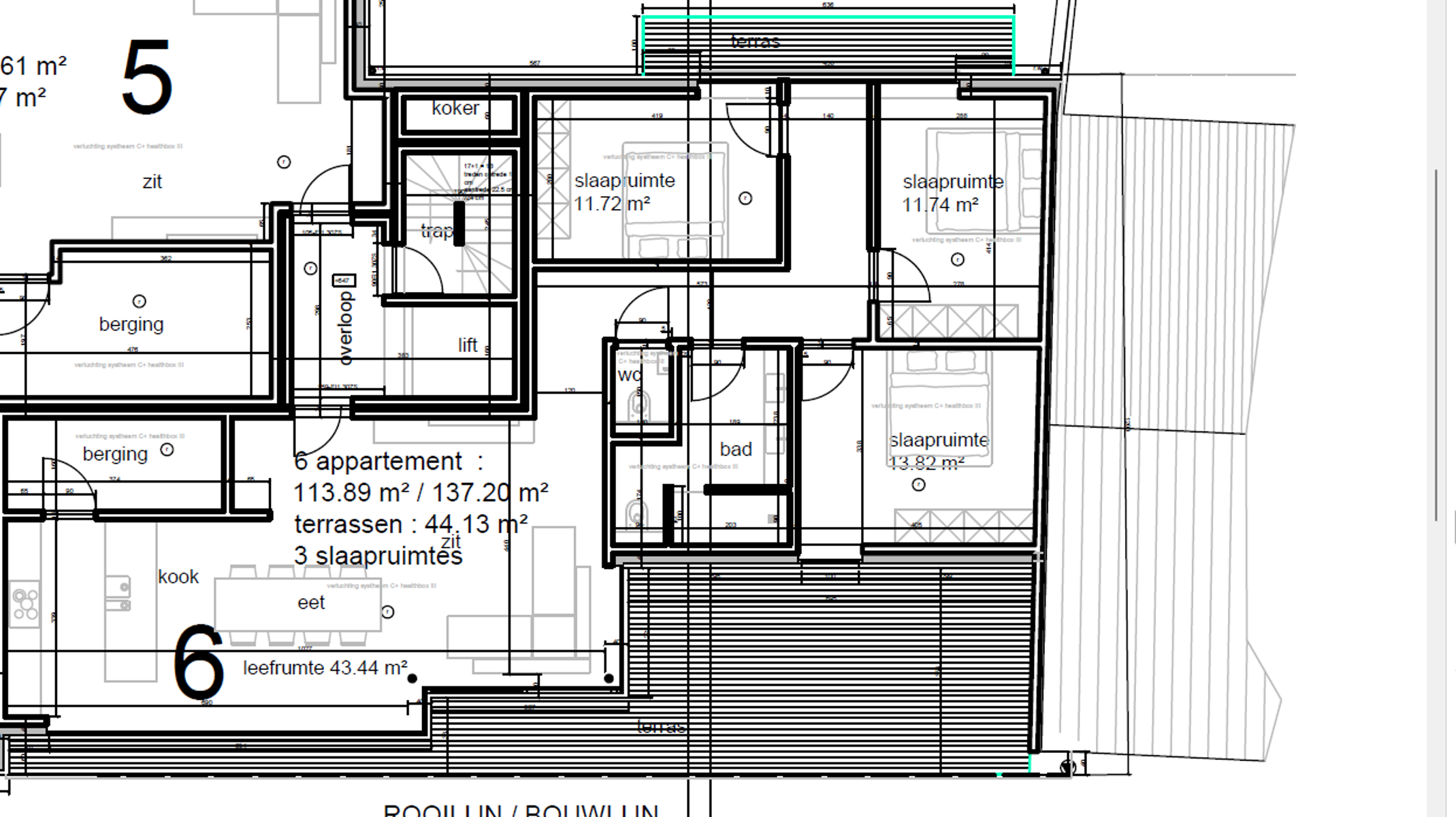
Deze prachtige penthouse (met een totale bewoonbare opp van 137 m²) heeft een open leefruimte van 44m² met grote glaspartijen en biedt vast een prachtig uitzicht en veel natuurlijk licht. Met de 2 ruime terrassen (tot 44m²) is er ook volop gelegenheid om buiten te genieten. Daarnaast zijn de 3 tweepersoonskamers ideaal voor een groot gezin. Eén van de kamers kan uiteraard ingericht worden als bureel/praktijkruimte. De badkamer met ligbad, douche, dubbele wastafel en toilet voegt zeker luxe en comfort toe.
Gelegen in de rustige deelgemeente Viane, biedt dit project uitstekende verbindingen naar o.a Brussel/ Rijsel:
Met de wagen, met de oprit naar de E429 op slechts 8 min rijden. Met het openbaar vervoer : op 1,8 km van trein met rechtstreekse verbinding naar o.a. BXL
- Natuurreservaat Rietbeemd 3 km
- Muur van Geraardbergen 4,2 km
- Bosberg te Galmaarden
- recreatiedomein de Gavers
U geniet van een hoog wooncomfort dankzij Akoestische en Thermische Isolatie, Automatische Zonnewering, Herbruik van Regenwater, Individuele Warmtepomp met Zonnepanelen, Vloerverwarming, Voldoende Opbergruimte, Ruime Terrassen. De indeling en afwerking kunnen nog volgens uw wensen worden aangepast, zodat u uw droom(t)huis kunt creëren. Voor bijkomende info: Bel 0475361252 of pieter@cornelis-partners.be. Vermelde prijs is excl RR en BTW
Financieel en beschikbaarheid
- Nettoprijs
- € 481.000
- Beschikbaarheid
- Bij oplevering
Gebouw
- Bewoonbare opp.
- 137 m²
- Staat
- Nieuwbouw
- Verdieping
- 2
- Verdieping(en)
- 2
Indeling
- Kamers
- 3
- Terras
- Ja
- Terrasoppervlakte
- 44 m²
Downloads
De vraag-/richtprijs die we hanteren wordt beschouwd als uitnodiging tot onderhandeling ten aanzien van kandidaat-kopers. De kandidaat-koper is vrij om een bod te plaatsen dat lager, gelijk aan of hoger is dan de prijs die vermeld wordt in de publiciteit. De verkoper beslist welk bod hij/zij aanvaardt en dit hoeft niet het hoogste bod te zijn. De prijs die we in onze publiciteit vermelden kan daarom geenszins als bindend gelden voor de verkoper.
Deze informatie is louter indicatief en kan zonder voorafgaande verwittiging gewijzigd worden.
Interesse? Nog vragen?
Vergelijkbare panden
Bekijk appartementen Te koop in de buurt
Dendermonde, Lede, Zele
Gent-Merelbeke, Oudenaarde
Geraardsbergen





































