Appartement te koop in Geraardsbergen
Appartement te koop in Geraardsbergen Appartement te koop in Geraardsbergen Appartement te koop in Geraardsbergen

Appartement Te koop Geraardsbergen

  • 158 m²
  • 3

541.000

Vianeplein 24

EPC

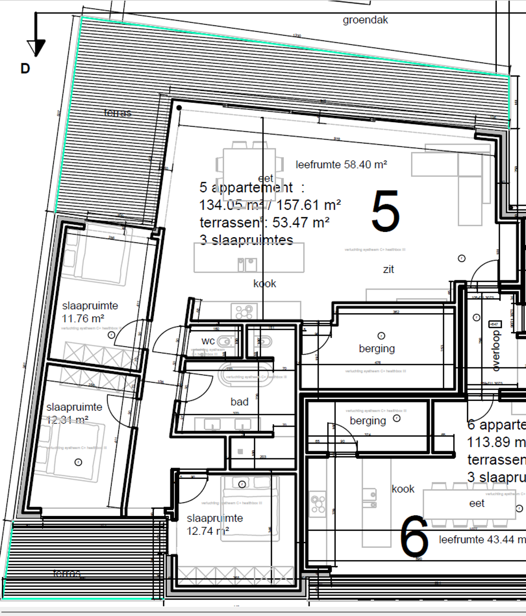
Nieuwbouwappartement met 3 slpks + terras

Welkom bij nieuwbouwproject “BEAU” te Geraardsbergen (deelgemeente Viane), waar lichtinval, privacy en een prachtig uitzicht hand in hand gaan.

Deze prachtige penthouse (met een totale bewoonbare opp van 157 m²) heeft een open leefruimte van 60m² met grote glaspartijen en biedt vast een prachtig uitzicht en veel natuurlijk licht. Met de 2 ruime terrassen (tot 53 m²) is er ook volop gelegenheid om buiten te genieten. Daarnaast zijn de 3 tweepersoonskamers ideaal voor een groot gezin. Eén van de kamers kan uiteraard ingericht worden als bureel/praktijkruimte. De badkamer met ligbad, douche, dubbele wastafel en toilet voegt zeker luxe en comfort toe.

Gelegen in de rustige deelgemeente Viane, biedt dit project uitstekende verbindingen naar o.a Brussel/ Rijsel:
Met de wagen, met de oprit naar de E429 op slechts 8 min rijden. Met het openbaar vervoer : op 1,8 km van trein met rechtstreekse verbinding naar o.a. BXL
- Natuurreservaat Rietbeemd 3 km
- Muur van Geraardbergen 4,2 km
- Bosberg te Galmaarden
- recreatiedomein de Gavers

U geniet van een hoog wooncomfort dankzij Akoestische en Thermische Isolatie, Automatische Zonnewering, Herbruik van Regenwater, Individuele Warmtepomp met Zonnepanelen, Vloerverwarming, Voldoende Opbergruimte, Ruime Terrassen. De indeling en afwerking kunnen nog volgens uw wensen worden aangepast, zodat u uw droom(t)huis kunt creëren. Voor bijkomende info: Bel 0475361252 of pieter@cornelis-partners.be. Vermelde prijs is excl RR en BTW

Dit pand is onderdeel van het project "Project 'BEAU' - Vianeplein, Viane"

Financieel en beschikbaarheid

Nettoprijs
€ 541.000
Beschikbaarheid
Bij oplevering

Gebouw

Bewoonbare opp.
158 m²
Staat
Nieuwbouw
Verdieping
2
Verdieping(en)
2

Indeling

Kamers
3
Terras
Ja
Terrasoppervlakte
53 m²

De vraag-/richtprijs die we hanteren wordt beschouwd als uitnodiging tot onderhandeling ten aanzien van kandidaat-kopers. De kandidaat-koper is vrij om een bod te plaatsen dat lager, gelijk aan of hoger is dan de prijs die vermeld wordt in de publiciteit. De verkoper beslist welk bod hij/zij aanvaardt en dit hoeft niet het hoogste bod te zijn. De prijs die we in onze publiciteit vermelden kan daarom geenszins als bindend gelden voor de verkoper.
Deze informatie is louter indicatief en kan zonder voorafgaande verwittiging gewijzigd worden.

Interesse? Nog vragen?

Gelieve uw aanspreking in te vullen.

Gelieve uw voornaam in te vullen.

Gelieve uw naam in te vullen.

Gelieve uw e-mailadres in te vullen.

Gelieve een geldig telefoonnummer in te vullen

Gelieve uw bericht in te vullen.

Gelieve akkoord te gaan met onze voorwaarden.

Appartement te koop in Geraardsbergen

Vergelijkbare panden

Bekijk appartementen Te koop in de buurt

Appartement te koop in Geraardsbergen
Appartement

Geraardsbergen

€ 395.000

  • 126 m²
  • 2
Appartement te koop in Geraardsbergen
Appartement

Geraardsbergen

€ 481.000

  • 137 m²
  • 3
Appartement te koop in Geraardsbergen
Appartement

Geraardsbergen

€ 541.000

  • 158 m²
  • 3
Appartement te koop in Geraardsbergen
Appartement

Geraardsbergen

€ 405.000

  • 132 m²
  • 2
Appartement te koop in Geraardsbergen
Appartement

Geraardsbergen

€ 405.000

  • 132 m²
  • 2
Appartement te koop in Geraardsbergen
Appartement

Geraardsbergen

€ 481.000

  • 137 m²
  • 3
Appartement te koop in Geraardsbergen
Appartement

Geraardsbergen

€ 395.000

  • 126 m²
  • 2
Appartement te koop in Geraardsbergen
Appartement

Geraardsbergen

€ 419.500

  • 131 m²
  • 126 m²
Appartement te koop in Geraardsbergen
Appartement

Geraardsbergen

€ 499.000

  • 325 m²
  • 526 m²
Appartement te koop in Geraardsbergen
Appartement

Geraardsbergen

€ 485.460

  • 186 m²
  • 2
Appartement te koop in Geraardsbergen
Appartement

Geraardsbergen

€ 610.000

  • 225 m²
  • 403 m²
Appartement te koop in Geraardsbergen
Appartement

Geraardsbergen

€ 404.500

  • 90 m²
  • 85 m²
Appartement te koop in Geraardsbergen
Appartement

Geraardsbergen

€ 419.500

  • 131 m²
  • 126 m²
Appartement te koop in Geraardsbergen
Appartement

Geraardsbergen

€ 404.500

  • 90 m²
  • 85 m²
Gelijkvloerse verdieping te koop in Geraardsbergen
In optie
Gelijkvloerse verdieping

Geraardsbergen

€ 419.500

  • 131 m²
  • 126 m²
Appartement te koop in Geraardsbergen
Appartement

Geraardsbergen

€ 404.500

  • 90 m²
  • 85 m²
Gelijkvloerse verdieping te koop in Geraardsbergen
In optie
Gelijkvloerse verdieping

Geraardsbergen

€ 419.500

  • 131 m²
  • 126 m²
Appartement te koop in Geraardsbergen
Appartement

Geraardsbergen

€ 404.500

  • 90 m²
  • 85 m²
Appartement te koop in Geraardsbergen
In optie
Appartement

Geraardsbergen

€ 419.500

  • 131 m²
  • 126 m²
Appartement te koop in Geraardsbergen
Appartement

Geraardsbergen

€ 419.500

  • 131 m²
  • 126 m²
Appartement te koop in Geraardsbergen
Appartement

Geraardsbergen

€ 404.500

  • 90 m²
  • 85 m²
App.complex gemengd gebruik te koop in Geraardsbergen
Nieuw
App.complex gemengd gebruik

Geraardsbergen

€ 630.000

  • 160 m²
  • 270 m²
Gelijkvloerse verdieping te koop in Geraardsbergen
In optie
Gelijkvloerse verdieping

Geraardsbergen

€ 419.500

  • 131 m²
  • 126 m²
Penthouse te koop in Ophasselt
Nieuw
Penthouse

Ophasselt

€ 495.000

  • 110 m²
  • 110 m²

Dendermonde, Lede, Zele

052 52 80 30

Gent-Merelbeke, Oudenaarde

09 232 21 50

Geraardsbergen

054 67 00 60

Vraag schatting