Polyvalent handelspand met terras op topligging
Dit handelspand, momenteel ingericht als horecazaak, bevindt zich op één van de commerciële toplocaties in Geraardsbergen.
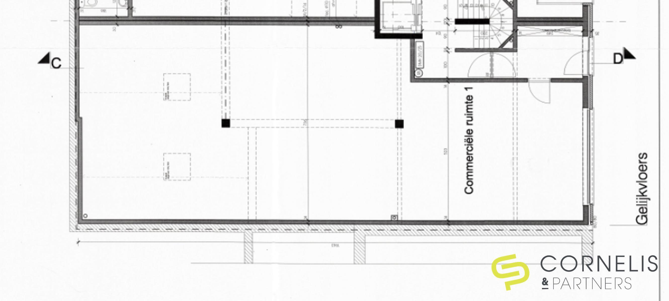
De huidige indeling omvat een verbruikszaal voor min. 50 personen, keuken, afzonderlijke toiletten (M/V), bergruimte. De zaak is stijlvol ingericht ( o.a parket vloeren, ..) en voorzien van de nodige faciliteiten (ventilatie met impulsiesysteem, vloerverwarming, ..)
Aan de oever van de Dender beschikt deze zaak ook over gezellig aangelegd terras in hardhout (in huur).
Dit pand komt in aanmerking voor zowel horeca (de zaak is vrij van brouwer) , kantoorruimte , retail, vrij beroep...
Lage algemene (syndicus)kosten, o.a. geen gemeenschappelijk kosten in bv. onderhoud van de lift.
Zowel toeristisch als commercieel is dit één van de top-locaties van Geraardsbergen :
- op de fiets/wandel verbindingsweg tussen Geraardsbergen en het provinciaal "domein de Gavers"
- op 2 km van de Markt van Geraardsbergen en aansluitend de Muur
- 3 scholen, nieuwe bibliotheek, ... binnen een straal van 500m
- veel bushaltes in de buurt
- ruime parkeermogelijkheden in de buurt
Ook voor investeerders is dit een opportuniteit. Dit instapklaar handelspand is gegeerd bij kandidaat huurders gezien de goede staat en ligging.
Contacteer ons voor meer info (bijkomende foto's, plannen, stedenbouwkundige attesten, ....) , een bezoek , ... op 0475 36 12 52 of mail : pieter@cornelis-partners.be
Financieel en beschikbaarheid
- Nettoprijs
- € 275.000
- Kadastraal inkomen
- € 1.337
Gebouw
- Bewoonbare opp.
- 120 m²
- Constructie
- Gesloten
- Staat
- Goede staat
Indeling
- Toiletten
- 4
Comfort
- Rolstoeltoegankelijk
- Ja
Energie
- EPC
- EPC unieke code
- 20230922-0002747111-KNR-2
Stedenbouwkundige informatie
- Bestemming
- Woongebied met een cult., hist. en/of esthetische waarde
- Bouwvergunning
- Ja
- Verkavelingsvergunning
- Nee
- Voorkooprecht
- Ja
- G-score
- A
- P-score
- A
- Watergevoelig openruimtegebied
- Nee
- Kadaster sectie
- B
- Kadaster nummer
- 127/Y2/2
- Bodemattest
- Ja
Downloads
De vraag-/richtprijs die we hanteren wordt beschouwd als uitnodiging tot onderhandeling ten aanzien van kandidaat-kopers. De kandidaat-koper is vrij om een bod te plaatsen dat lager, gelijk aan of hoger is dan de prijs die vermeld wordt in de publiciteit. De verkoper beslist welk bod hij/zij aanvaardt en dit hoeft niet het hoogste bod te zijn. De prijs die we in onze publiciteit vermelden kan daarom geenszins als bindend gelden voor de verkoper.
Deze informatie is louter indicatief en kan zonder voorafgaande verwittiging gewijzigd worden.
Interesse? Nog vragen?
Vergelijkbare panden
Bekijk kantoren Te koop in de buurt
Dendermonde, Lede, Zele
Gent-Merelbeke, Oudenaarde
Geraardsbergen

